Exkluzivní nabídka světlého bytu o výměře 64 m2.
Pocitově velmi klidný a příjemný byt se nachází ve 2. P v pečlivě spravovaném a udržovaném cihlovém domě, ve správě výborně fungujícího SVJ.
Pocit komfortního bydlení, vzdušnosti a velkorysého prostoru dotváří vysoké stropy se sníženými podhledy s nainstalovaným odhlučněním.
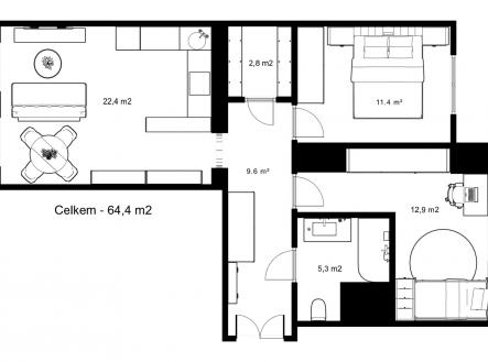
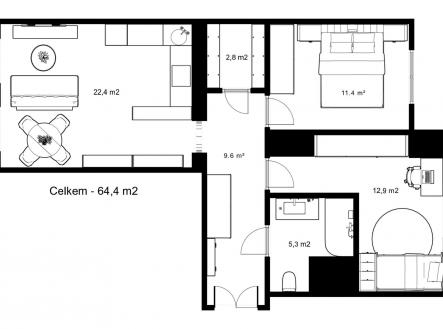
Dispozici bytu tvoří tři samostatné neprůchozí místnosti, koupelna s toaletou a technická místnost.
K vybavení bytu patří kuchyňská linka s vestavěnými spotřebiči.
Orientace bytu je příznivá.
Obývací pokoj je orientován na západní světovou stranu, ložnice a dětský pokoj směřují do klidného vnitrobloku s orientací na východ.
Dostatek denního světla a zároveň snížení hluku do místností, zajišťují kvalitní dřevěná eurookna s izolačními dvojskly.
Byt byl kompletně a precizně zrekonstruován, je nově vymalovaný bez potřeby investic, ihned volný.
Ve fotogalerii se nachází i návrh možné úpravy obývacího pokoje a ložnice.
Parkování za symbolickou cenu formou ročního pronájmu, je možné na vyhrazeném parkovacím místě ve vnitrobloku.
K dispozici je prostorný sklep v suterénu domu o výměře 12 m2.
Lokalita s kompletní občanskou vybaveností.
Výborná dopravní dostupnost - stanice metra 2 minuty chůze, centrum města pohodlně dosažitelné v čase 10 minut.
V současnosti probíhá v okolí výstavba nových developerských projektů, které po dokončení zvýší investiční potenciál dynamicky se rozvíjejícího, městského centra levého břehu Vltavy.
Kompletní informace v RK.
- Dispozice bytu:3+kk
- Podlaží v domě:2
- Počet podlaží v domě:3
- Celková podlahová plocha:64 m2
- Druh objektu:cihlová
- Stav objektu:po rekonstrukci
- Vlastnictví:osobní
- Sklep:12 m2
- Umístění objektu:centrum obce
- Doprava:vlak; dálnice; silnice; MHD; autobus
- Elektřina:Elektro - 230 V
- Voda:Vodovod
- Telekomunikace:Telefon; Internet
- Plyn:Plynovod
- Topení:Ústřední - plynové
- Odpad:Kanalizace
- Ostatní rozvody:Kabelová televize; Kabelové rozvody
- Energetická náročnost budovy:G - Mimořádně nehospodárná
- Energetický ukazatel
podle vyhlášky:č. 264/2020 Sb. - Počet parkovacích míst:1
